vorheriges BildÜbersichtnächstes Bild


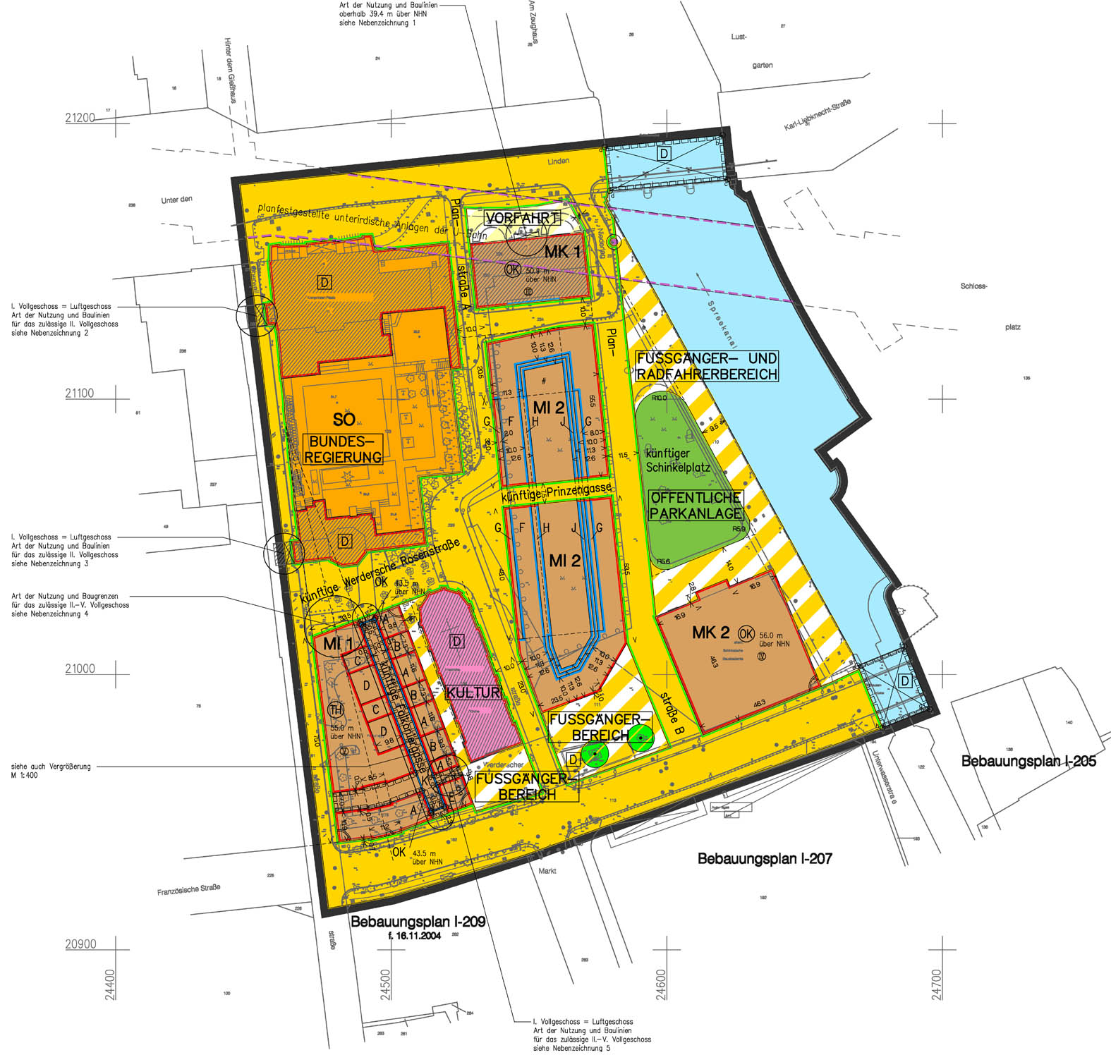
Berlin, Bebauungsplan I-208
Friedrichswerder Nord